
Type : Construction du duplex et rénovation complète logement 1
Lieu : Plateau-Mont-Royal, Montréal
Année : 2020
Superficie : 2200 pied²
Partenaires : Construction Gaïa — Ébénisterie Pinplex
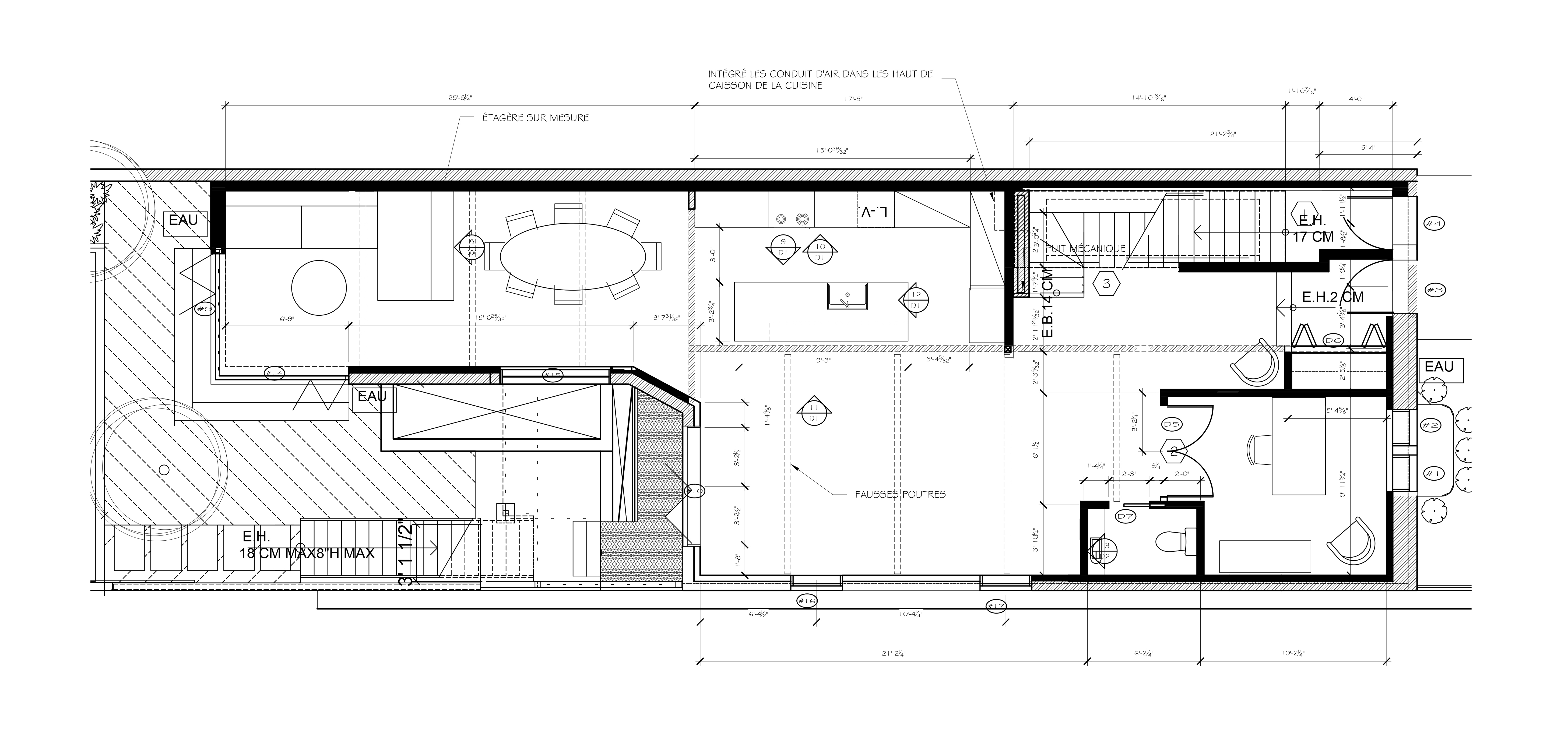
Initialement une reprise de chantier en arrêt depuis plus de 2 ans pour la construction de ce duplex en maison unifamiliale, lorsque ce projet à commencer, il ne restait plus que la façade avant et les fondations. Un grand travail de remise à neuf du chantier a été réalisé pour permettre d’entamer la construction. Un défi de taille et une collaboration étroite avec l’architecte pour restructurer l’édifice en duplex.
Comme la cliente quittait une maison unifamiliale en banlieue pour habiter le premier logement à l’étage, un grand souci a été apporté à la disposition de l’espace afin de transposer un type d’espace similaire. L’espace commun, la cuisine, la salle d’eau et le bureau se retrouvent au rez-de-chaussée afin de recréer une aire de vie similaire à celle d’une maison unifamiliale, alors que les chambres et la salle de bain se situent au sous-sol. Le sous-sol a été creusé afin de permettre l’installation de fenêtres plus grandes pour un maximum de lumière.
Bien qu’il s’agit d’une nouvelle construction, presque tous les meubles et mobiliers ont été récupérés de l’ancienne maison, ce qui ajoute une touche d’authenticité au modernisme de la rénovation. Le bois des poutres et de quelques accents a été récupéré lors de la démolition et ajouté à la finition pour créer une séparation entre les différents espaces et ajouter de la chaleur.












